Antara anjing laut yang berputar berputar, terdapat dua jenis: RC2055 dan RC2056. Ruichen Seals telah mengkaji pembangunan dan pembuatan produk meterai selama bertahun -tahun. Mengikut situasi yang berbeza dan keperluan yang berbeza, ia telah menyempurnakan reka bentuk yang lebih terperinci.
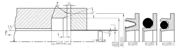
RC2055 adalah meterai pan-plug berputar, RC2055-B adalah meterai bergigi berputar, dan RC2055-C adalah meterai kombinasi berbentuk y. Alur ketiga boleh ditukar ganti. Mereka adalah meterai fungsi tinggi dengan tekanan unidirectional yang digunakan untuk aci berputar. Antaranya, meterai RC2055 Rotary Pan-Plug terdiri daripada mata air keluli tahan karat dan plastik fungsi tinggi. Apabila menggunakan RC2055-B dan RC2055-C, adalah perlu untuk memilih bahan elastomer yang sepatutnya.
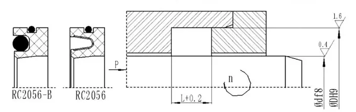
RC2056 adalah meterai pan-plug berputar, dan RC2056-B adalah meterai kombinasi berbentuk y berputar. Alur juga boleh ditukar. Ia juga sesuai untuk digunakan dalam aci berputar. Antaranya, meterai RC2056 Rotary Pan-Plug terdiri daripada mata air keluli tahan karat dan plastik fungsi tinggi. Apabila menggunakan RC2056-B dan, adalah perlu untuk memilih bahan elastomer yang sepatutnya.
Ciri dan aplikasi produk:
Ciri Produk:
Prestasi Tinggi: Spring keluli tahan karat dan plastik fungsi tinggi digabungkan untuk memastikan prestasi pengedap dan ketahanan yang sangat baik.
Interchangeability: Reka bentuk alur produk dalam siri ini adalah sama, yang membolehkan interchangeability dan penyesuaian fleksibel kepada keadaan kerja yang berbeza.
Secara meluas: Sesuai untuk pengedap tekanan sehala dari aci berputar untuk memenuhi keperluan perindustrian yang pelbagai.
Elastomer pilihan: RC2055-B, RC2055-C dan RC2056-B menyokong pemilihan bahan elastomer yang sepadan mengikut keadaan kerja untuk meningkatkan kebolehsuaian.
Senario Aplikasi:
Pengedap tekanan sehala dari aci berputar sesuai untuk peralatan perindustrian, jentera kejuruteraan, sistem hidraulik, dll.
Peristiwa di mana pengedap fungsi tinggi diperlukan, seperti petrokimia, peralatan tenaga, jentera berat, dll.
Kelebihan Teknikal:
Spring keluli tahan karat menyediakan daya radial yang stabil untuk memastikan kesan pengedap jangka panjang.
Gabungan plastik fungsi tinggi dan bahan elastomer sesuai untuk tekanan tinggi dan keadaan kerja berkelajuan tinggi.
Reka bentuk yang boleh ditukar dengan alur memudahkan pemasangan dan penyelenggaraan dan mengurangkan kos penggunaan.
Cadangan Penggunaan:
Pilih model meterai yang sesuai dan bahan elastomer mengikut keadaan kerja tertentu.
Pastikan alur bersih semasa pemasangan untuk mengelakkan kerosakan pada meterai.
RC2055
Keadaan kerja yang berkenaan (nilai had tidak boleh muncul pada masa yang sama)
| Tekanan (MPA) | Suhu (℃) | Kelajuan (m/s) | Medium | |||
| ≤35 | RC2055 | RC2055-B/C. | RC2055 | RC2055-B | RC2055-C | Hampir semua media cecair dan gas |
| -200 ~+250 | -35 ~+250 | <2m/s | <6m/s | <2m/s | ||
Pemilihan bahan
1. Bahan O-Ring yang sepadan boleh dipilih: Ro1 Nitrile Rubber (NBR), RO2 Fluororubber (FKM), dll.
2. Bahan Cincin Pengedap: PTFE1, PTFE2, PTFE3, PTFE4, UPE, PK1, PK2, dll.
3. Spring keluli tahan karat: Spring berbentuk V.
Contoh pesanan
RC2055- 40-PTFE4+V Diameter aci 40, bahan cincin pengedap adalah PTFE4, musim bunga keluli tahan karat adalah spring berbentuk v
RC2055-B-40-PTFE4+R02 Diameter aci adalah 40, bahan cincin pengedap adalah PTFE4, padanan O-ring adalah fluororubber
RC2055-C-40-PTFE4+R02 Diameter aci adalah 40, bahan cincin pengedap adalah PTFE4, padanan O-ring adalah fluororubber
Jadual Parameter Spesifikasi (semua spesifikasi dalam julat parameter tersedia)
| Julat diameter rod d f8 | Diameter alur DH9 | Diameter alur D1H10 | Kedalaman tepi L1 | Lebar alur L. | Import Chamfer k | Pelepasan radial S max | Panjang chamfer | r maks | |
| 10mpa | 20mpa | ||||||||
| 5 ~ 19.9 | D+5 | D+9 | 0.85 -0.1 | 3.6 | 0.3 | 0.15 | 0.1 | Zmin = 0.8L | 0.8 |
| 20 ~ 39.9 | D+7 | D+12.5 | 1.35 -0.15 | 4.8 | 0.4 | 0.20 | 0.15 | 1.1 | |
| 40 ~ 400.9 | D+10.5 | D+17.5 | 1.8 -0.2 | 7.1 | 0.5 | 0.25 | 0.20 | 1.4 | |
| 401 ~ 1500 | D+14 | D+22 | 2.8 -0.2 | 9.5 | 0.5 | 0.30 | 0.25 | 1.6 | |
Nota: Adalah disyorkan bahawa kekerasan permukaan aci berputar hendaklah HRC ≥ 58.
RC2056
Keadaan kerja yang berkenaan (nilai had tidak boleh muncul pada masa yang sama)
| Tekanan (MPA) | Suhu (℃) | Kelajuan (m/s) | Medium | ||
| ≤2 | RC2056 | RC2056-B | RC2056 | RC2056-B | Hampir semua media cecair dan gas |
| -200 ~+250 | -35 ~+250 | <14m/s | <6m/s | ||
Pemilihan bahan
1. Bahan O-Ring yang sepadan boleh dipilih: Ro1 Nitrile Rubber (NBR), RO2 Fluororubber (FKM), dll.
2. Bahan Cincin Pengedap: PTFE1, PTFE2, PTFE3, PTFE4, UPE, PK1, PK2, dll. 3. Spring keluli tahan karat: Spring berbentuk V.
Contoh pesanan
RC2056-40*62*8-ptfe4+v d*d*l, bahan cincin pengedap adalah ptfe4, dan musim bunga keluli tahan karat adalah spring berbentuk v RC2056-B-40*62*8-PTFE4+R02 D*D*L, bahan cincin pengedap adalah ptfe4, dan cincin yang sepadan adalah fluororubber



















Alamat
No.1 Ruichen Road, Taman Perindustrian Dongliuting, Daerah Chengyang, Qingdao City, Provinsi Shandong, China
Tel